Ref # : GE3697
For Sale € 475,000.00
House of Character large garden
Nadur, GOZOOverview
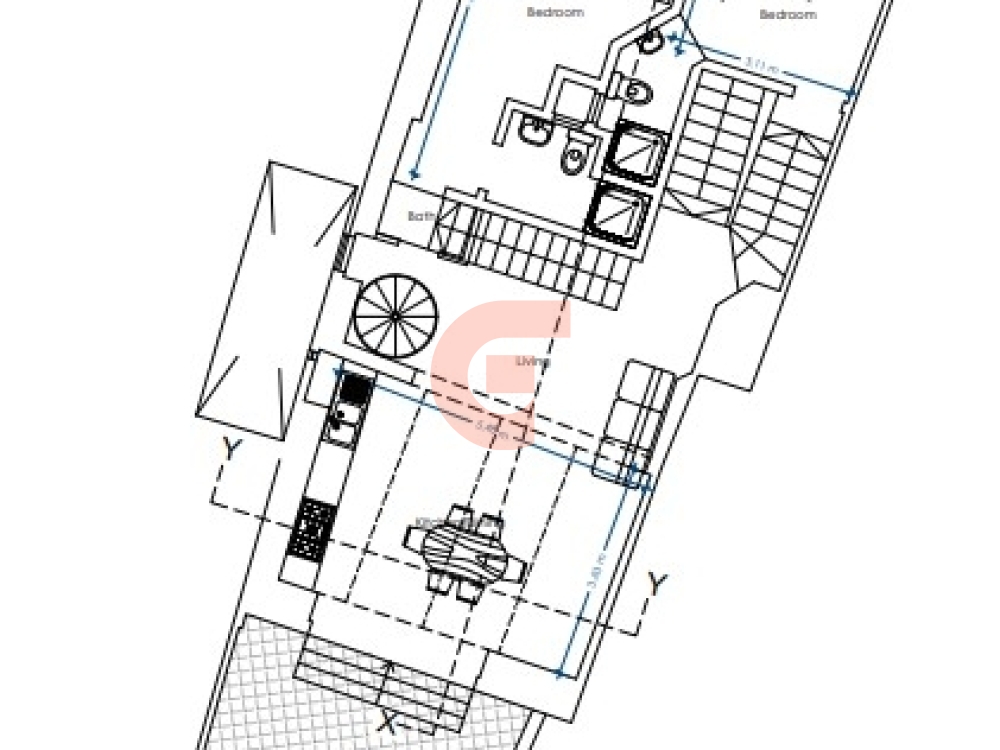
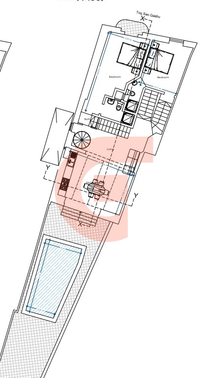
Located in this requested Village in Gozo is this centrally located Unconverted HOUSE OF CHARACTER, measuring approximately 270sqm floor area, with proposed plans to build a three-bedroom House with a pool, garden and garage. HARD TO FIND
Neighborhood
- Super market: 2 minutes by Walk
- Beach: 10 minutes by Car
- Coffee shop: 10 minutes by Walk
- Bus station: 3 minutes by Walk
- Town center: 10 minutes by Walk
Features
General Amenities
Exterior Amenities
Landscape Amenities
Giovanni Real Estate
One of the successful real estate agency in the Maltese Islands offering property for sale and turnkey solutions in Malta and Gozo. A vast range of,Apartments, Penthouses Maisonettes, Terraced Houses, Traditional Farmhouses, Houses of character ,Bungalows, Villas, Commercial outlets, property investments and properties for sale are available in Malta and Gozo.
Check out our website, the best place to start your real estate search. You can also contact our real estate agent for a customized selection of the property types you are interested in, including professional advice and opinion.
















