Ref # : GE2944
For Sale € 235,000.00
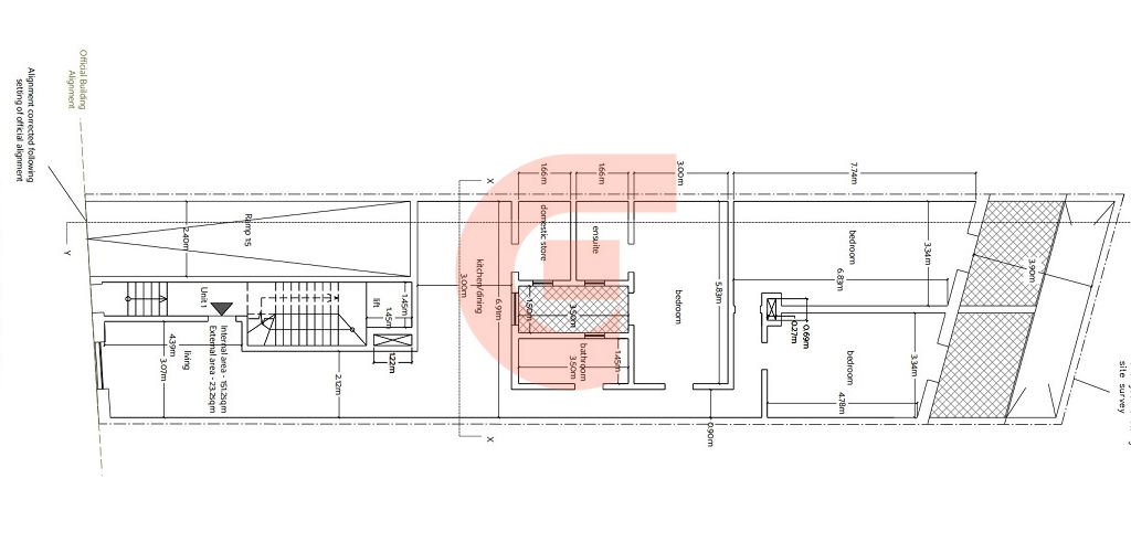
Maisonette
Kercem, GOZOOverview
A larger than usual 3 bedroom Maisonette centrally located, featuring a layout of an entrance to a combined kitchen/dining/living, 3 double bedrooms (main with en-suite), box room, internal, and a back yard. Being sold in shell-form.
Features
Base Information
Parking Information
General Amenities
Exterior Amenities
Giovanni Real Estate
One of the successful real estate agency in the Maltese Islands offering property for sale and turnkey solutions in Malta and Gozo. A vast range of,Apartments, Penthouses Maisonettes, Terraced Houses, Traditional Farmhouses, Houses of character ,Bungalows, Villas, Commercial outlets, property investments and properties for sale are available in Malta and Gozo.
Check out our website, the best place to start your real estate search. You can also contact our real estate agent for a customized selection of the property types you are interested in, including professional advice and opinion.





