Ref # : GE3843
For Sale € 465,000.00
Terraced House with Pool & Deck Area
Qala, GOZOOverview
House 2 – Contemporary Terraced Residence with 4 Bedrooms & Pool Located in a UCA Area
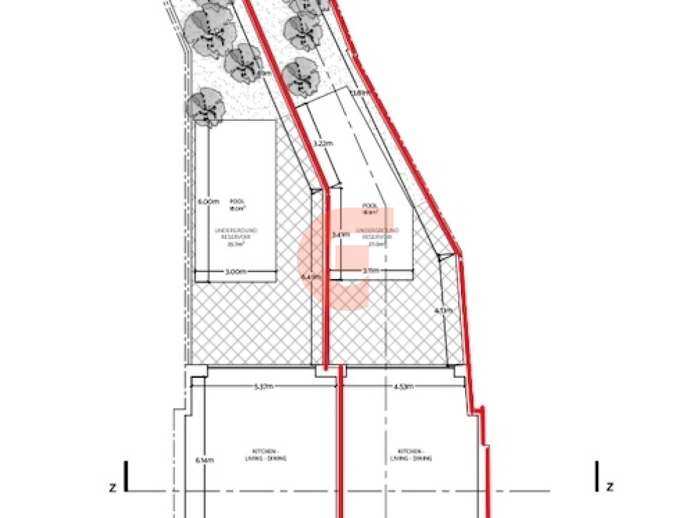
House 2 combines contemporary design with smart internal planning. The ground floor is centred around a spacious kitchen/living/dining area overlooking a private 18.0m² pool, offering a serene retreat ideal for families, entertaining, or holiday use. Additional ground-floor amenities include a bathroom and a garage with private access.
The first floor features three full bedrooms with en-suite bathrooms, ensuring comfort and functionality across the sleeping quarters. The receded floor provides a fourth en-suite bedroom, a washroom, and well-designed external spaces—making it perfect for use as a guest suite or master level.
A 27.0m³ underground reservoir supports the home, while the exterior reflects traditional Gozitan architecture with unpainted limestone, blue apertures, and classic railings.
Internal area - 176sqm
External area - 103sqm
Features
Base Information
Parking Information
General Amenities
Exterior Amenities
Giovanni Real Estate
One of the successful real estate agency in the Maltese Islands offering property for sale and turnkey solutions in Malta and Gozo. A vast range of,Apartments, Penthouses Maisonettes, Terraced Houses, Traditional Farmhouses, Houses of character ,Bungalows, Villas, Commercial outlets, property investments and properties for sale are available in Malta and Gozo.
Check out our website, the best place to start your real estate search. You can also contact our real estate agent for a customized selection of the property types you are interested in, including professional advice and opinion.




