Ref # : GE3686
For Sale € 415,000.00
Unconverted House of Character
Xewkija, GOZOOverview
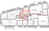
This unconverted property with approved PA permits to convert into a beautiful House of Character is located in a very nice and quiet area in the lovely village of Xewkija
Generous proportions and flexible design, it’s the perfect blank canvas to finish to your taste, whether you’re looking for a long-term rental or resale potential, or a stylish home of your own.
House No.2 _ €415,000
Features
Base Information
General Amenities
Exterior Amenities
Landscape Amenities
Giovanni Real Estate
One of the successful real estate agency in the Maltese Islands offering property for sale and turnkey solutions in Malta and Gozo. A vast range of,Apartments, Penthouses Maisonettes, Terraced Houses, Traditional Farmhouses, Houses of character ,Bungalows, Villas, Commercial outlets, property investments and properties for sale are available in Malta and Gozo.
Check out our website, the best place to start your real estate search. You can also contact our real estate agent for a customized selection of the property types you are interested in, including professional advice and opinion.










